*** OPEN HUIS: ZATERDAG 4 OKTOBER A.S. VAN 11.00 - 15.00 UUR ***

Welkom bij Vecht en Veld 53 te Vreeland - Vrijstaand wonen met vrij uitzicht over het bos en een eigen ligplaats aan De Vecht.

Ontwaken met heerlijk uitzicht over het bos met fluitende vogels op de achtergrond. Geniet van ultieme rust, ruimte en comfort in dit royale, luxe vrijstaande herenhuis dat gebouw is in 2022 (opgeleverd in 2023), gelegen op…

*** OPEN HUIS: ZATERDAG 4 OKTOBER A.S. VAN 11.00 - 15.00 UUR ***

Welkom bij Vecht en Veld 53 te Vreeland - Vrijstaand wonen met vrij uitzicht over het bos en een eigen ligplaats aan De Vecht.

Ontwaken met heerlijk uitzicht over het bos met fluitende vogels op de achtergrond. Geniet van ultieme rust, ruimte en comfort in dit royale, luxe vrijstaande herenhuis dat gebouw is in 2022 (opgeleverd in 2023), gelegen op loopafstand van de ligplaats in de afgesloten haven aan de schilderachtige rivier de Vecht. Exclusief wonen op niveau, met een woonoppervlakte van maar liefst 225 m² op een riant perceel van 784 m² biedt deze woning alles wat je zoekt; vier ruime slaapkamers, waarbij eenvoudig een vijfde slaapkamer te realiseren is en twee badkamers, een vrijstaande berging met elektra, privé ligplaats voor je sloep op loopafstand in De Vecht, vrij uitzicht aan de achterzijde, veel bergruimte o.a. in de kelder en een een royale tuin rondom. De tuin is aan beide zijden van het huis voorzien van een afsluitbaar hek, zodat kinderen of huisdieren niet zomaar de straat op kunnen rennen. Verder is er een laadpaal aanwezig en kunnen er vijf auto's op eigen terrein geparkeerd worden.

Hier is nagedacht over comfort en verduurzaming; 3 thuis batterijen en 27 zonnepanelen (hierdoor is er sprake van een nul-op-de-meter woning!), een irrigatiesysteem in de tuin, een warm en koud water aansluiting in de tuin, een natuurlijke (én solide) beschoeiing, kunststofvlonder terras en diverse bomen en planten waaronder een 40 jaar oude walnotenboom. Uiteraard is het gehele huis voorzien van vloerverwarming en volledige isolatie. Ook is het gehele huis voorzien van cat6 ethernet aansluitingen in elke ruimte.

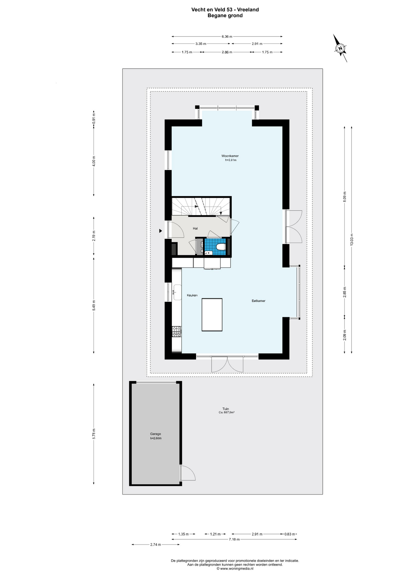
INDELING
Begane grond:
Entree met garderobe, toiletruimte (met warm en koud waterkraan) en trap opgang naar eerste verdieping en de kelder.
Uitgebouwde woonkeuken met een zeer royale op maat gemaakte keuken in hoekopstelling met middenblok en Belgisch hardstenen blad. De landelijke keuken is voorzien van diverse inbouwapparatuur waaronder een groot fornuis, Smeg elektrische oven, een Quooker kraan, dubbele wastafel, Amerikaanse koelkast en vaatwasser.
De eetkamer is gelegen aan de achterzijde van de woning en de zitkamer is aan de voorzijde gelegen en voorzien van erker en aansluiting voor een openhaard. De gehele verdieping is voorzien van een plavuizenvloer met vloerverwarming.

Eerste verdieping:
De eerste verdieping is voorzien van een drietal goede slaapkamers en een badkamer. De master bedroom is voorzien van een walk in closet en een heerlijk balkon met openslaande deuren, hoe heerlijk om wakker te worden met fluitende vogels op de achtergrond. De moderne badkamer is uitgerust met een inloopdouche, handdoeken radiator en wastafelmeubel. Op de overloop is het toilet te vinden met warm én koud water kraantje.

Tweede verdieping:
Op deze verdieping tref je één hele grote slaapkamer aan die eenvoudig in twee slaapkamers getransformeerd kan worden. Tevens hier de tweede badkamer die is uitgerust met een toilet, wastafelmeubel, een ligbad en een handdoeken radiator. Natuurlijk is er ook een technische ruimte waar onder andere de was/droog-aansluitingen aanwezig zijn. Achter de knieschotten bevindt zich veel bergruimte.

Kelder:
Vanuit de hal is de kelder met een vaste trap te bereiken, naast extra bergruimte zijn hier ook de drie thuisbatterijen ten behoeve van de opslag van opgewekte energie aanwezig.

Tuin:
De heerlijke tuin rondom het huis is voorzien van diverse terrassen, waaronder een vlonderterras met overkapping aan de waterkant, verder is de tuin fraai aangelegd en zijn er diverse borders en bomen. Er zijn 4 volwassen bomen, te weten; een 40 jaar oude walnootboom, een 15 jaar oude berk, een 35 jaar oude Japanse vuuresdoorn en een
25 jaar oude Liquidunbar. De tuin is volledig biologisch, zonder chemicaliën en alleen op dierlijke mest gebaseerde meststoffen. Ideaal is het aangelegde irrigatiesysteem dat water via een pomp uit het water naast het huis haalt. De overkapping is voorzien van elektra en een sedumdak, hier kun je tot laat in de avond heerlijk zitten. De zijtuin is voorzien van een natuurlijke en zeer solide beschoeiing en aan de voorzijde is aan beide zijde een hek zodat kinderen of huisdieren niet zomaar de weg op kunnen. Op de oprit en de voortuin is plaats voor vijf auto's.

Samengevat: Een instapklare villa voor wie zoekt naar rust, ruimte, water, natuur én een heerlijk modern wooncomfort.

LIGGING
Vreeland ligt als een oase van rust in het groene hart van Nederland. Vanuit dit oude dorpje zijn Amsterdam Centrum, Utrecht Centrum en Hilversum in 20 autominuten bereikbaar. De uitvalswegen lopen door waterrijke gebieden: De Loosdrechtse, Vinkeveense en Kortenhoefse plassen zijn allen bereikbaar via de rivier De Vecht, die ook door Vreeland kronkelt. Een ideale uitvalsbasis voor waterrecreatie en toeristische voet- en fietsroutes langs Vecht en Plassen.
Daarbij is Vreeland een hecht en gezellig dorp, door verschillende commissies worden er veel activiteiten en evenementen georganiseerd voor zowel het gehele dorp (Dorpsfeest, Koningsdag, Brugborrel) en specifieke doel- en leeftijdsgroepen (Huttenbouwen, Buurtkamer, paaseieren zoeken).

In het dorp bevindt zich sterrenrestaurant De Nederlanden, het pannenkoekenrestaurant Hendrik, eetcafé mevrouw Daalder, peuterspeelzaal Vechtkroost, basisschool CSV Ridderhof, een BSO, een kapsalon en een verrassend complete dagwinkel. De sportvoorzieningen (voetbal, hockey, tennis en golf) zijn op 10 fietsminuten bereikbaar in Loenen aan de Vecht als ook een grotere supermarkt. Alle scholen voor middelbaar onderwijs (Hilversum en Breukelen) liggen op fietsafstand.

BIJZONDERHEDEN:
- Gebruiksoppervlakte 225 m², perceel 784 m²
- Tuin rondom
- Vrij uitzicht
- Alle te openen ramen voorzien van horren
- Eigen ligplaats aan de Vecht op enkele minuten loopafstand
- Bouwjaar 2022, opgeleverd in 2023
- Diverse maatwerk kasten
- Vier slaapkamers, twee badkamers (vijfde slaapkamer mogelijk!)
- Oplevering: in overleg

Enthousiast geworden? Maak dan zeker een afspraak voor een vrijblijvende bezichtiging. Je kunt ons bereiken op telefoonnummer 0294-232929.

Deze woning is gemeten volgens de Meetinstructie. De Meetinstructie is gebaseerd op de NEN2580. De Meetinstructie is bedoeld om een meer eenduidige manier van meten toe te passen voor het geven van een indicatie van de gebruiksoppervlakte. De Meetinstructie sluit verschillen in meetuitkomsten niet volledig uit, door bijvoorbeeld interpretatieverschillen, afrondingen of beperkingen bij het uitvoeren van de meting. Hoewel wij de woning met veel zorg hebben opgemeten kan het zijn dat er verschillen zijn in de afmetingen. Noch verkoper noch de makelaar accepteert enige aansprakelijkheid voor deze verschillen. De maatvoeringen worden door ons gezien als zuiver indicatief. Indien de exacte maatvoering voor jou van belang is, raden wij jou aan de maten zelf te (laten) meten.

Deze informatie is door ons met de nodige zorgvuldigheid samengesteld. Onzerzijds wordt echter geen enkele aansprakelijkheid aanvaard voor enige onvolledigheid, onjuistheid of anderszins, dan wel de gevolgen daarvan. Alle opgegeven maten en oppervlakten zijn indicatief. Van toepassing zijn de NVM voorwaarden.

Meer informatie

Neem vrijblijvend contact op

Kenmerken

Algemeen
  • Bouwjaar: 2022
  • Woonoppervlakte: ca. 225 m2
  • Perceeloppervlakte: ca. 784m2
  • Inhoud: ca. 1104m3
  • Ligging: Aan bosrand, aan water, in woonwijk, vrij uitzicht, aan vaarwater
Indeling
  • Verdiepingen: 2022
  • Slaapkamers: 4
  • Tuin: Tuin rondom
  • Garage: Geen garage
Energie
  • Isolatie: Volledig geisoleerd
  • Verwarming: Mogelijkheid voor open haard, vloerverwarming geheel
  • Warm water: -

Plattegronden

    Zoekopdracht plaatsen

    Vul het formulier in om een zoekopdracht aan te maken.

      Wij verwerken uw gegevens volgens ons privacybeleid