Wat een heerlijk licht dubbel bovenhuis (142 m²) met twee dakterrassen (samen 30 m²) en drie slaapkamers aan het mooiste deel van de Overtoom, slechts enkele wandelminuten verwijderd van de hoofdingang van het lommerrijke Vondelpark en chique winkelstraat P.C. Hooftstraat.

Indeling:
Via de statige entree van dit prachtige 19-e -eeuwse pand komt u binnen, via de Belgisch hardstenen portiek. De zware massief eiken straatdeur…

Wat een heerlijk licht dubbel bovenhuis (142 m²) met twee dakterrassen (samen 30 m²) en drie slaapkamers aan het mooiste deel van de Overtoom, slechts enkele wandelminuten verwijderd van de hoofdingang van het lommerrijke Vondelpark en chique winkelstraat P.C. Hooftstraat.

Indeling:
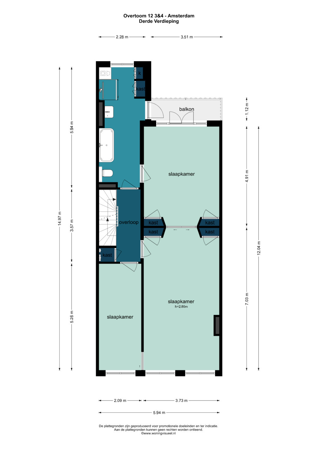
Via de statige entree van dit prachtige 19-e -eeuwse pand komt u binnen, via de Belgisch hardstenen portiek. De zware massief eiken straatdeur geeft toegang tot het trappenhuis. De makkelijk begaanbare, luie trap brengt u naar de tweede verdieping. Hier stapt u uw appartement binnen en hangt u jas en shawl op. Via de interne trap komt u op de derde verdieping. Hier heeft de tijd stilgestaan en zijn meerdere originele stijlelementen bewaard gebleven. De paneeldeuren en suitekasten zijn goed onderhouden en in de traditionele lindengroene kleur geschilderd, een zwart marmeren schouw heeft zich verstopt achter het bedboard en de sierpleister kaders pronken aan het plafond. De master bedroom bevindt zich aan de voorzijde van het pand en heeft een interne deur naar de naast gelegen babykamer. De derde slaapkamer is te bereiken via de grote badkamer of via de suitedeuren. Deze kamer is ook de perfecte home-office met haar robuuste vaste boekenkast en dubbele deuren naar het balkon met uitzicht op de binnentuinen. In alle drie de slaapkamers is een stoere breedplanken eiken vloer gelegd. De badkamer heeft een traditionele zwart/wit-geblokte plavuizenvloer, een diep ligbad met handdouche, een hangend closet, een wit porseleinen wastafel op chromen onderstel met eigentijdse wandkranen, een inloopdouche met gelaagd glazen spatscherm, vaste handdoekenkasten en ruimte voor de wasmachine/wasdroger opstelling. Het daglicht via het balkon en het raam in de achtergevel maakt deze badkamer een prettige ruimte om lang in te verpozen.

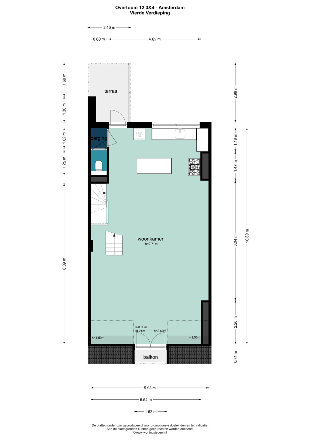
Via de overloop en de trap naar boven komt u in de indrukwekkende, loftachtige, woonkamer met niet alleen licht vanuit de ruiten in de voorgevel en achtergevel maar ook via de twee grote daklichten. Deze prachtige ruimte leent zich perfect voor dinnerparty’s met een grote groep vrienden vanwege de ruim opgezette woonkeuken met werkeiland en eetbar. En evengoed is er nog plek voor een flinke eettafel met 10 stoelen. Onder de knusse schuine wand aan de voorzijde van de woonverdieping is de uitgelezen plek voor een flinke loungebank om in weg te zinken voor een binge-avond Netflix met een pot thee of het lezen van de nieuwste Dan Brown met een glas wijn.

In de zomer is het dakterras aan de keuken de ideale plek voor een snelle espresso voorafgaand aan het vertrek naar kantoor. En in het weekend is het grote dakterras boven de loft de perfect plek om de BBQ naast de tuinset aan te steken of om een zonnebad te nemen op het ligbed.
NB Inclusief in de prijs voor dit loftappartement zijn 5 zonnepanelen voor (bijna) gratis stroom!

VVE:

Naam: VVE Overtoom 12 te Amsterdam
Gelegen: op eigen grond
Eigendomsaandeel: 137/368e aandeel
Stemaandeel: 2 van de 5 stemmen
Aantal leden: drie
Maandelijkse bijdrage: € 280,- (€ 80,- opstal en servicekosten plus € 200,- MJOP
Kaspositie: € 20.000, - bruidsschat voor extern schilderwerk 2027
MJOP: lopend tot 31/12/2038
Bijzonderheden: het pand is met vergunning gesplitst (2023) in appartementsrechten waarbij de fundering een klasse 2 (goed) heeft gekregen en installaties etc zijn gekeurd en goed bevonden

Good to know:

Three-bedroom apartment (142 m²)
Top two floors (no upstairs neighbors)
Two private terraces (30 m² combined)
Bathroom with tub and separate shower
Two toilets
Energy-label: C
Including 5 private solar panels
Free hold ground
Available per direct

Omgeving:

Sport: Basic Fit Ladies, Arie Boomsma’s Vondelgym , David Lloyd Fitness Club met zwembad en Movements Hot Yoga; allen aan de Overtoom, Sportcity Looiersgracht of Circuittrainingen in het Vondelpark.

Supermarkt: Albert Heijn Overtoom, Jumbo Eerste C. Huygensstraat, Lidl Alberdingk Thijmstraat

Delicatessenwinkels: Vlaamsch Brrodhuys, Slagerij Serge, Vishandel Smit en Grapedistrict; allen op de 1-e C. Huygensstraat, Chabrol Wijnen Overtoom

Openbaar vervoer: tram 1, 3 en 17 halte 1e C. Huygensstraat, tram 2, 5, 7, 12 en 19 halte Leidse Plein

Per fiets in 10 minuten naar NS Station Centraal of in 20 minuten NS Station Lelylaan

Per auto in 10 minuten naar A10 Ringweg Amsterdam S106

Lopend in 5 minuten naar uitgaansgebied Leidse Plein met Pathe Bioscoop, Filmhuizen Cinecentre en De Balie, Theater Stadsschouwburg, Bellevue en De la Mar, Poppodia Paradiso en Melkweg

Horeca: een keur aan kleinschalige bars en restaurants aan Overtoom en Leidse Plein waaronder De Ebeling, Café Americain, Palladium etc

NB Gelegen op eigen grond dus geen schrikbarende erfpachtnota's !

Meer informatie

Neem vrijblijvend contact op

Kenmerken

Algemeen
  • Bouwjaar: 1891
  • Woonoppervlakte: ca. 142 m2
  • Perceeloppervlakte: -
  • Inhoud: ca. 488m3
  • Ligging: -
Indeling
  • Verdiepingen: 1891
  • Slaapkamers: 3
  • Tuin: -
  • Garage: Geen garage
Energie
  • Isolatie: Dakisolatie, vloerisolatie, grotendeels dubbelglas
  • Verwarming: -
  • Warm water: -

    Zoekopdracht plaatsen

    Vul het formulier in om een zoekopdracht aan te maken.

      Wij verwerken uw gegevens volgens ons privacybeleid