LAURIERSTRAAT 20-H, 1016 PM AMSTERDAM

Een unieke samensmelting van karakter, moderne luxe en een absolute toplocatie. Op de hoek van de Prinsengracht en de Laurierstraat in een van de mooiste en meest serene straatjes van de Jordaan ligt deze bijzonder stijlvol gerenoveerde benedenwoning van ca. 153 m². Verdeeld over drie woonlagen biedt het huis twee royale slaapkamers en een zonnige stadstuin op het westen.
Alles is tot in…

LAURIERSTRAAT 20-H, 1016 PM AMSTERDAM

Een unieke samensmelting van karakter, moderne luxe en een absolute toplocatie. Op de hoek van de Prinsengracht en de Laurierstraat in een van de mooiste en meest serene straatjes van de Jordaan ligt deze bijzonder stijlvol gerenoveerde benedenwoning van ca. 153 m². Verdeeld over drie woonlagen biedt het huis twee royale slaapkamers en een zonnige stadstuin op het westen.
Alles is tot in de puntjes vernieuwd: een nieuwe fundering (2021), een volledig geïsoleerd dak (2024), energielabel A, vloerverwarming, airconditioning en een hoogwaardige afwerking die warmte en comfort ademt.

**** ENGLISH TEXT SEE BELOW ****

OMGEVING
De Laurierstraat is een van de charmante straatjes in de Jordaan, een geliefde buurt in het hart van Amsterdam. Deze buurt staat bekend om haar historische panden, smalle straatjes, gezellige grachten, en levendige sfeer. De Laurierstraat ligt precies in het verlengde van de beroemde negen straatjes, die bekend staan om hun unieke boetiekjes, sfeervolle cafés, en bijzondere winkeltjes. Tevens is het appartement gunstig gelegen ten opzichte van diverse kinderdagverblijven, crèches en scholen.

INDELING:
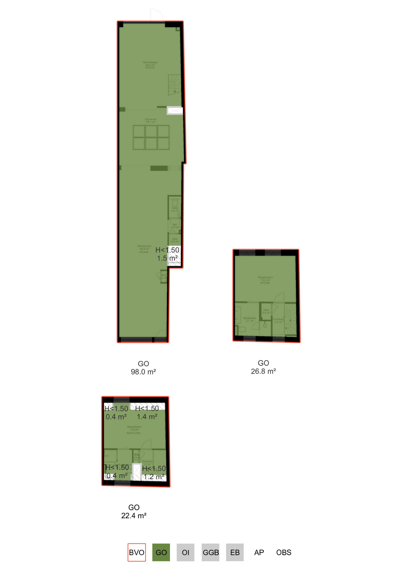
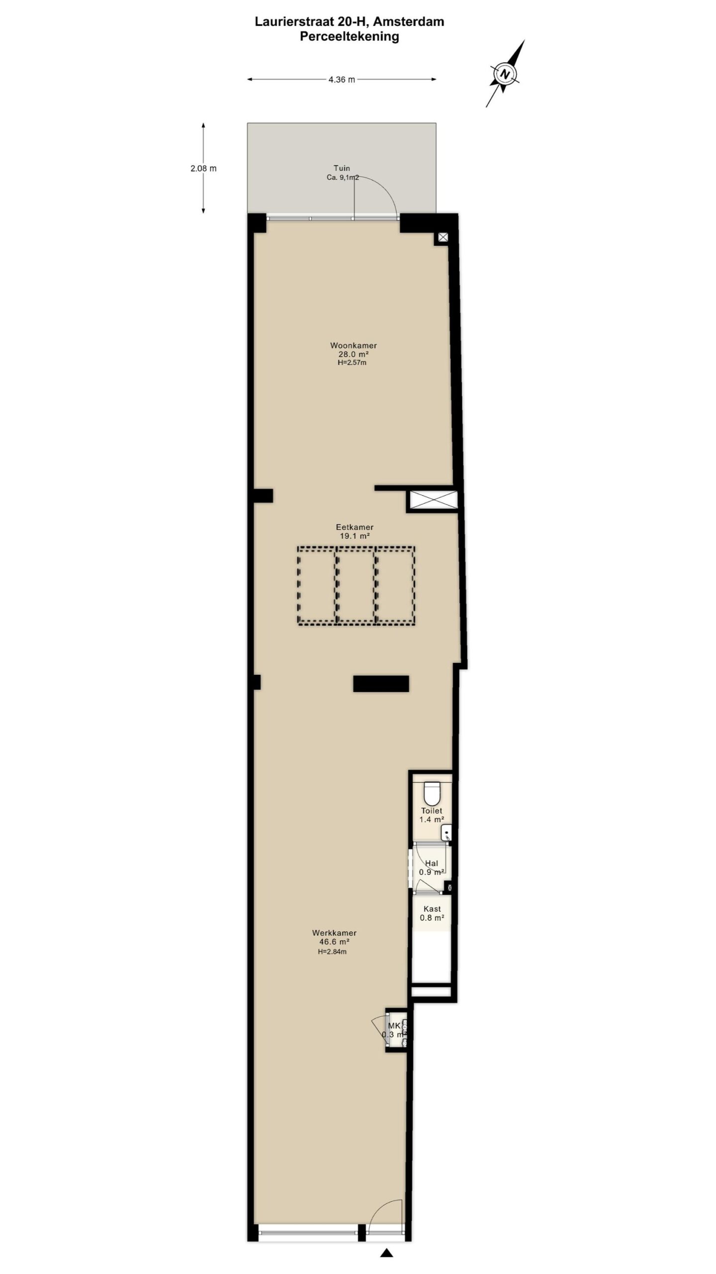
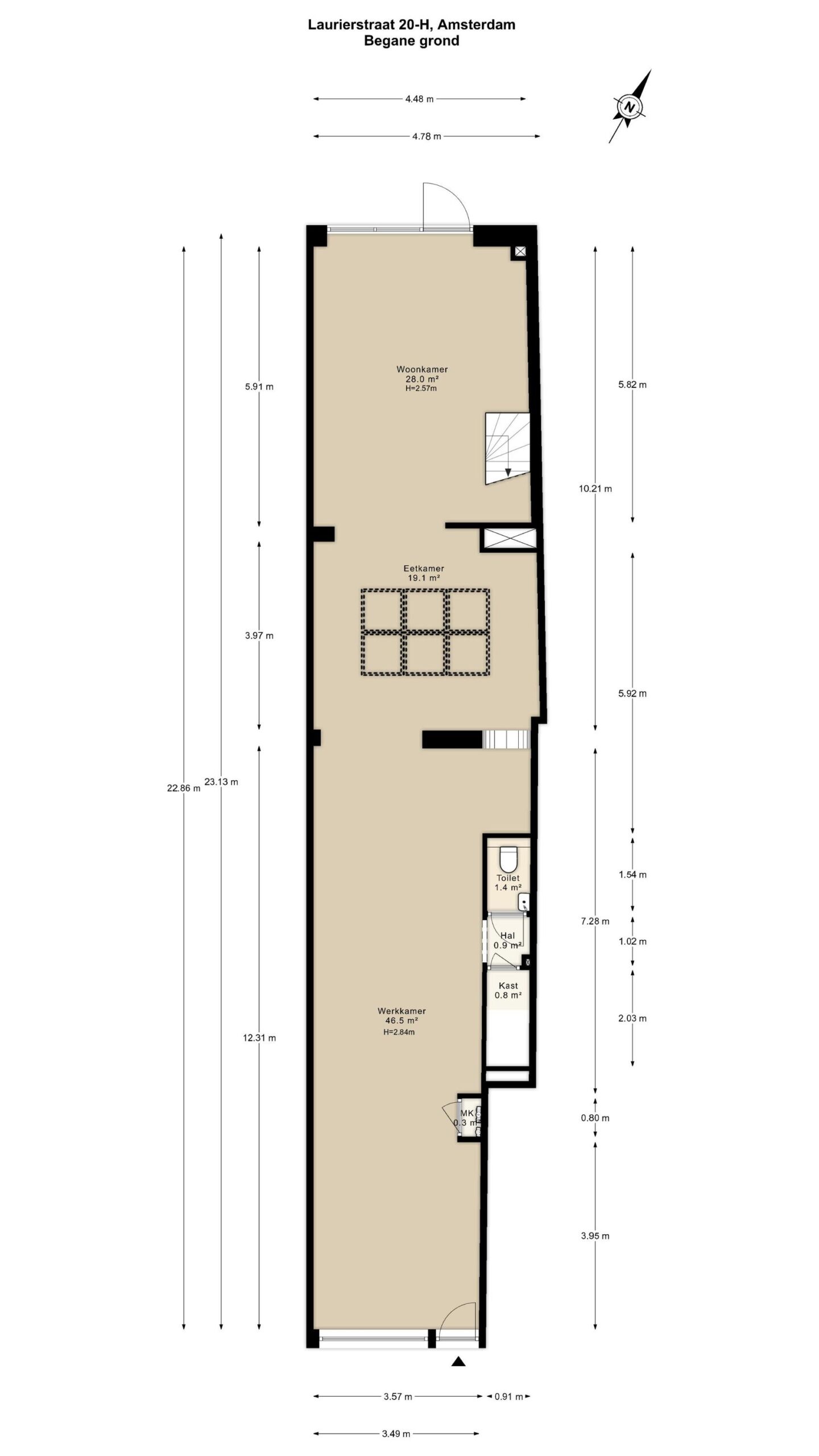
Via uw eigen entree stapt u binnen in een indrukwekkende leefruimte van circa 100 m². Hier vloeien de open keuken, eetkamer en zitkamer harmonieus in elkaar over, met als blikvanger de op maat gemaakte Velux-lichtstraat die de ruimte baadt in daglicht. De keuken kan nog geheel naar uw persoonlijke smaak worden ingericht, waardoor dit het perfecte hart van het huis wordt. Aan de achterzijde nodigt de zitkamer uit tot ontspannen, met openslaande deuren naar een charmante stadstuin van circa 9 m² op het westen een ideale plek om na een lange dag te genieten van de avondzon. De gehele verdieping is voorzien van comfortabele vloerverwarming. Daarnaast zijn er een stijlvolle garderobe en een separaat gastentoilet aanwezig.

Eerste verdieping
De master bedroom van circa 28 m² ademt luxe en comfort. Twee Franse balkonnetjes zorgen voor een licht en luchtig karakter, terwijl de royale ensuite badkamer met inloop(regen)douche, dubbele wastafel en toilet u dagelijks een hotelgevoel geeft. Op de overloop bevindt zich bovendien een praktische wasruimte, slim weggewerkt maar toch altijd binnen handbereik.

Tweede verdieping
Ook de tweede slaapkamer circa 25 m² heeft een bijzondere uitstraling, mede dankzij het zicht op de originele houten balken die de ruimte een warme, karaktervolle sfeer geven. Ook hier beschikt u over een luxe ensuite badkamer met inloopdouche, wastafel en toilet. Aangrenzend ligt de technische ruimte, die naast de installaties ook extra bergruimte biedt.
Elke verdieping is met zorg afgewerkt, waarbij stijl en comfort op harmonieuze wijze zijn gecombineerd.

BIJZONDERHEDEN:
- Volledig en hoogwaardig gerenoveerd
- Woonoppervlakte ca. 153 m² (conform NEN 2580)
- Gelegen op de hoek van de Prinsengracht
- Stadstuin op het westen (ca. 9 m²)
- Er kan eenvoudig een derde slaapkamer en badkamer gerealiseerd worden;
- Nieuwe fundering (2021)
- Nieuw geïsoleerd dak (2024)
- Vloerverwarming op de begane grond
- Airconditioning in beide slaapkamers
- Energielabel A
- Eeuwigdurend afgekochte erfpacht (Groene Opinie aanwezig)
- Kleine en gezonde VvE (2 leden), professioneel beheerd
- VvE-bijdrage: €155,50 per maand
- Oplevering in overleg

DISCLAIMER
Deze informatie is door ons met de nodige zorgvuldigheid samengesteld. Onzerzijds wordt echter geen enkele aansprakelijkheid aanvaard voor enige onvolledigheid, onjuisthed(en) of anderszins, dan wel de gevolgen daarvan. Koper heeft zijn eigen onderzoek plicht naar alle zaken die voor hem of haar van belang zijn. Met betrekking tot deze woning is de makelaar adviseur van verkoper. Wij adviseren u een deskundige (NVM-)makelaar in te schakelen die u begeleidt bij het aankoopproces. Indien u specifieke wensen heeft omtrent de woning, adviseren wij u deze tijdig kenbaar te maken aan uw aankopend makelaar en hiernaar zelfstandig onderzoek te (laten) doen. Indien u geen deskundige vertegenwoordiger inschakelt, acht u zich volgens de wet deskundige genoeg om alle zaken die van belang zijn te kunnen overzien. Van toepassing zijn de NVM voorwaarden.

NEN CLAUSULE
De gebruiksoppervlakte is berekend conform de branche vastgestelde NEN 2580- norm. De oppervlakte kan derhalve afwijken van vergelijkbare panden en/of oude referenties. Dit heeft vooral te maken met deze (nieuwe) rekenmethode. Koper verklaart voldoende te zijn geïnformeerd over de hiervoor bedoelde normering. Verkoper en diens makelaar doen hun uiterste best de juiste oppervlakte en inhoud te berekenen aan de hand van eigen metingen en dit zoveel mogelijk te ondersteunen door het plaatsen van plattegronden met maatvoering. Mocht de maatvoering onverhoopt niet (volledig) overeenkomstig de normering zijn vastgesteld, wordt dit door koper aanvaard. Koper is voldoende in de gelegenheid gesteld de maatvoering zelf te (laten) controleren. Verschillen in de opgegeven maat en grootte geven geen der partijen enig recht, zo ook niet op aanpassing van de koopsom. Verkoper en diens makelaar aanvaarden geen enkele aansprakelijkheid in deze.

**** ENGLISH TEXT ****

Unique combination of character, modern luxury and prime location located on the corner of Prinsengracht and Laurierstraat, in one of the most beautiful and quiet streets of the Jordaan, you will find this particularly tastefully renovated ground floor apartment of approx. 153 m², spread over three floors with two spacious bedrooms and a city garden facing west. Everything has been done: new foundation (2021), new roof with insulation (2024), energy label A, underfloor heating, air conditioning and high quality finishing.

ENVIRONMENT:
Located on the corner of Prinsengracht and Laurierstraat, here you live in the quiet heart of the Jordaan, with the liveliness of the city within walking distance. The 9 straatjes, Elandsgracht and Noordermarkt are around the corner, as are stores such as Baskèts, Tenue de Nîmes, and the Vlaamsch Broodhuys. For daily groceries, you can visit Ekoplaza, Albert Heijn, and butcher Siem van der Gragt. There are also plenty of cafes and eateries, including Libertine, Burgermeester, and Fou Fow Ramen. Public transportation is excellent with streetcars 5, 13 and 17, and the bus station on Marnixstraat is just steps away.

LAYOUT:
Ground floor
Through a private entrance, you enter a generous living space of approximately 100 m². The open kitchen, dining room and living room form an elegant whole, lit by a custom-made Velux skylight. The kitchen, still to be furnished to your own liking. At the rear is the sitting room with French doors to an attractive city garden of approx. 9 m², located on the west. The entire floor has underfloor heating. You will also find here a wardrobe and a separate guest toilet.

First floor
The master bedroom of approx. 28 m² has two French balconies and a luxurious ensuite bathroom with walk-in (rain) shower, double sink and toilet. A separate laundry room is located on the landing.

Second floor
The second bedroom of approx. 25 m² has a view of the original wooden beams and also features a luxurious ensuite bathroom with walk-in shower, sink and toilet. Adjacent is a technical room with additional storage space.

Each floor is finished with care, harmoniously combining style and comfort.

PARTICULARS:
- Completely and high-quality renovated
- Living area approx 153 m² (according to NEN 2580)
- Asking price includes an estimate of € 15,000, - including VAT for the kitchen to be installed
- Located on the corner of the Prinsengracht
- Three floors with two spacious bedrooms
- City garden facing west (approx. 9 m²)
- A third bedroom and bathroom can easily be realized;
- New foundation (2021)
- New insulated roof (2024)
- Underfloor heating on the first floor
- Air conditioning in both bedrooms
- Energy label A
- Ground lease bought off in perpetuity (Green Opinion available)
- Small and healthy VvE (2 members), professionally managed
- VvE-contribution: €155,50 per month

Meer informatie

Neem vrijblijvend contact op

Kenmerken

Algemeen
  • Bouwjaar: 1871
  • Woonoppervlakte: ca. 153 m2
  • Perceeloppervlakte: -
  • Inhoud: ca. 448m3
  • Ligging: Aan rustige weg, in centrum
Indeling
  • Verdiepingen: 1871
  • Slaapkamers: 3
  • Tuin: -
  • Garage: Geen garage
Energie
  • Isolatie: Dakisolatie, muurisolatie, vloerisolatie, dubbel glas
  • Verwarming: -
  • Warm water: Cv ketel

Plattegronden

    Zoekopdracht plaatsen

    Vul het formulier in om een zoekopdracht aan te maken.

      Wij verwerken uw gegevens volgens ons privacybeleid