Zeer indrukwekkend turn-key loft appartement (128 m²) in voormalige school met fenomenaal grachtenzicht, praktische personenlift en bijna 4,5 meter hoge plafonds. Ideaal voor de binnenstadbewoner die van rust en comfort houdt met de stadse dynamiek om de hoek maar niet voor de deur. Deze unieke woning is volledig gerenoveerd in 2020, waarbij gebruik is gemaakt van solide materialen en vervolgens luxe is afgewerkt.

De monumentale…

Zeer indrukwekkend turn-key loft appartement (128 m²) in voormalige school met fenomenaal grachtenzicht, praktische personenlift en bijna 4,5 meter hoge plafonds. Ideaal voor de binnenstadbewoner die van rust en comfort houdt met de stadse dynamiek om de hoek maar niet voor de deur. Deze unieke woning is volledig gerenoveerd in 2020, waarbij gebruik is gemaakt van solide materialen en vervolgens luxe is afgewerkt.

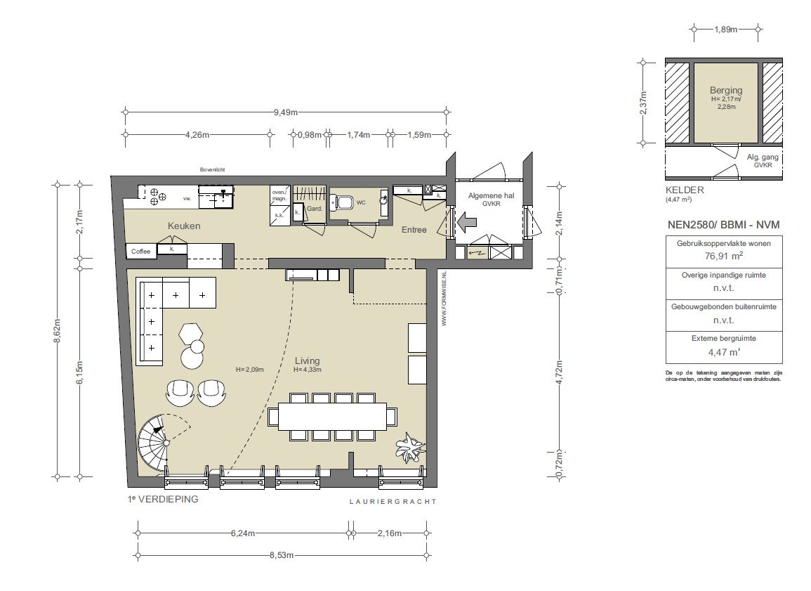
De monumentale massief eikenhouten dubbele voordeur laat u vanaf de gracht binnen in de vestibule met de brievenbussen en veilige videofoon. Vanaf hier ziet u meteen al, door de grote glazen deur, de typerende schoolvloertegeltjes en de originele champagnekleurige witjes aan de lambrisering. Met de personenlift, of de Belgisch hardstenen trap, komt u naar de eerste verdieping.

In de woning kunt u uw jas kwijt in de greeploze inbouwkasten waar naast de garderobe ook ruimte is voor buitenschoenen. De wc met fontein is discreet geïntegreerd in deze zelfde kastenwand. Aansluitend treft u de handgemaakte keuken welke is uitgevoerd met dimbare verlichting, een barista-corner en een italiaans hardstenen werkblad doorlopend in een grote spoelbak met beukenhouten snijplank. De apparatuur omvat drie solitaire branders in het keukenblad, een Bosch afwasmachine, een Gaggenau combimagnetron en een ijskast.

Het hart van het huis biedt ruimte aan een gigantische eettafel om vrienden aan te ontvangen om samen te borrelen of gewoon om alleen royaal de krant aan te lezen met een glas jus d’orange en een croissant. Het overweldigende licht stroomt binnen door de hoge ramen om het subtiele patroon van de dark-wash eiken vloer te onthullen. Scharnierende paneelluiken kunnen naar wens het zonlicht temperen. De zithoek bevindt zich knus onder de entresol met subtiel dimbare plafondspots.

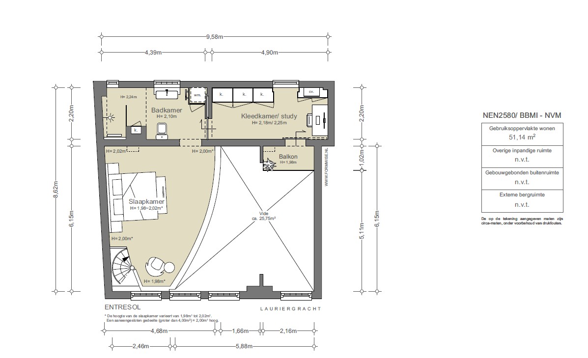
De spiltrap leidt naar de entresol, die als slaapkamer functioneert en aldus de loft-vibe behoudt door de openheid. De en-suite badkamer biedt een overweldigende regendouche met Vola-kranen, comfortabele vloerverwarming en de tweede design wc ontworpen door Philippe Starck. Vanuit de werkkamer heeft u prachtig overzicht, via het interne balkon, over het woongedeelte en de reflecties van het golvende grachtenwater op het plafond. De sneeuwuil-witte, op maat gemaakte kasten in de werkkamer bieden bergruimte voor de home-office of extra plek voor de wintergarderobe.
De Lauriergracht is een rustig straat maar op wandelafstand van alle gezellige drukte die bij een binnenstad hoort; de Jordaan staat bekend om zijn historische charme en moderne dynamiek. Al wandelend ontdekt men de beroemde Amsterdamse grachten met haar historische gebouwen, rijk gevulde musea en een zeer divers aanbod aan verschillende horeca, van traditionele cafés tot chique restaurants.

Ook het nabijgelegen winkelgebied “De Negen Straatjes” heeft een rijk aanbod aan charmante boetieks, kleinschalige horeca en natuurlijk gezellige markten zoals de Brocantemarkt op zaterdag rond de Noorderkerk, de Stoffenmarkt op maandag in de Westerstraat en de Ecologische zaterdagmarkt op de Lindengracht. Voor de broodnodiger beweging stapt u binnen aan de overkant bij lifestyle gym Double Shift of u jogt op uw gemak naar het Vondelpark voor een hardloop halfuurtje.

Tramlijn 5, 17 en 19 hebben haltes aan de Marnixstraat en brengen u naar NS-station Amsterdam Centraal. Tegenover de halte bevindt zich Q-Park voor uw parkeerabonnement van de auto.

Voor de dagelijkse boodschappen bevinden zich supermarkten Ekoplaza en Albert Heijn aan de Elandsgracht, twee fietsminuten verwijderd van de woning. Of u doet uw boodschappen bij de kleine middenstanders natuurlijk; voor ecologische vlees bij Slager Siem van der Gracht, voor taart bij Arnold Cornelis, voor ambachtelijk brood bij het Vlaamsch Broodhuis, voor een kaasplankje bij Kaashuis Tromp en voor een flesje bij de Gall & Gall. Wat is wonen in de binnenstad toch fijn !

Good to know:
- fully, high end, renovated (2020) loft
- located in former school
- first floor with elevator
- high ceilings, almost 4,5 meters
- underfloor heating throughout the apartement
- waterview on the canals
- free hold ground (no land lease)
- monthly service charge € 281,=
- available immediately
- taxvalue € 890.000,= per 01-01-2023
- NEN 2580: 128,05 m²

VVE:
- Naam: VVE van het gebouw Lauriergracht 47 te Amsterdam
- Eigendomsaandeel: 740/17.388-e aandeel
- Stemaandeel: 740 van 17.388 stemmen
- Aantal leden: 16 appartementen
- Maandelijkse bijdrage: € 281,=
- Kasreserve algemeen/lift: € 120.319,15 per 31/12/23
- MJOP: opgesteld in 2020 en up to date
- Onlangs uitgevoerd groot onderhoud:
* vervangen dakbitumen 2022
* schilderwerk raamkozijnen 2023
* vervangen liftkooi 2024
- Toekomstig onderhoud: schilderen dakgoten 2027

Geschiedenis De Voorzienigheid:
De congregatie ‘de Arme Zusters van het Goddelijke Kind’ werd in 1852 gesticht en dreef in de Jordaan een tehuis voor verwaarloosde meisjes tot 12 jaar onder de naam “Gesticht de Voorzienigheid”. Ook bekend als de “Stichting van de heilige Hieronymus en Aemilianus" opgericht door pastoor Petrus Hesseveld.
In 1858 begonnen de zusters een hostiebakkerij die zou uitgroeien tot een ware fabriek die elke week meer dan 600.000 hosties bakte. Het complex omvatte ook scholen en weeshuizen en besloeg in de eerste helft van de 20-e eeuw een groot deel van het bouwblok tussen de Lauriergracht, de Konijnenstraat en de Elandsstraat. In 1991 verhuisden de laatste zusters naar Heemstede.

Meer informatie

Neem vrijblijvend contact op

Kenmerken

Algemeen
  • Bouwjaar: 1923
  • Woonoppervlakte: ca. 128 m2
  • Perceeloppervlakte: -
  • Inhoud: ca. 550m3
  • Ligging: -
Indeling
  • Verdiepingen: 1923
  • Slaapkamers: 2
  • Tuin: -
  • Garage: Geen garage
Energie
  • Isolatie: Vloerisolatie, gedeeltelijk dubbel glas
  • Verwarming: -
  • Warm water: -

    Zoekopdracht plaatsen

    Vul het formulier in om een zoekopdracht aan te maken.

      Wij verwerken uw gegevens volgens ons privacybeleid