Amsterdam

Jacob van Lennepkade 41 H

€ 1.750.000 ,- K.K.

Residence Elegance | Dit High-End benedenhuis van circa 149 m² met stadstuin, is zonder twijfel het meest bijzondere aanbod in z’n soort. Het dubbel benedenhuis met energielabel A++ van een volledig gerenoveerd pand met vernieuwde fundering, gelegen op eigen grond op het mooiste en rustige gedeelte van de Jacob van Lennepkade.

De volledige renovatie, is met ongeëvenaarde aandacht voor detail gerealiseerd. Hoogwaardige en duurzame…

Residence Elegance | Dit High-End benedenhuis van circa 149 m² met stadstuin, is zonder twijfel het meest bijzondere aanbod in z’n soort. Het dubbel benedenhuis met energielabel A++ van een volledig gerenoveerd pand met vernieuwde fundering, gelegen op eigen grond op het mooiste en rustige gedeelte van de Jacob van Lennepkade.

De volledige renovatie, is met ongeëvenaarde aandacht voor detail gerealiseerd. Hoogwaardige en duurzame materialen zijn gecombineerd met maatwerkoplossingen, resulterend in een eigentijdse uitstraling met veel grandeur. Dit architectonische meesterwerk is voorzien van een eikenhouten vloer in een originele Hongaarse punt met dubbele bies, voorzien van zowel vloerverwarming als vloerkoeling, op maat gemaakte inbouwkasten, sierlijstwanden, designverlichting en nieuwe hardhouten kozijnen met isolerende beglazing. Aan de voorzijde biedt het huis een vrij uitzicht over de Da Costakade.

The Grand Tour
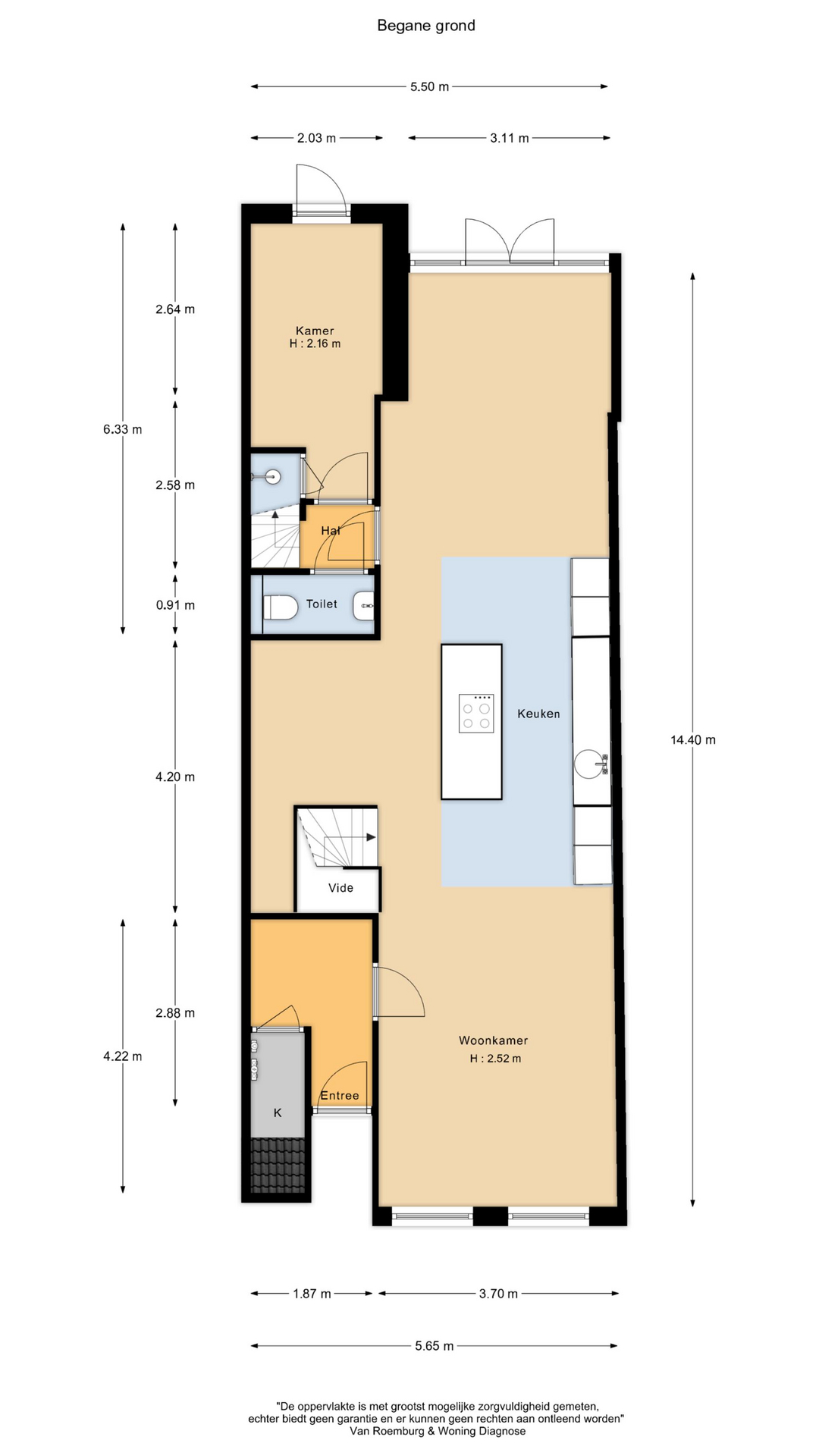
Via de representatieve entree met rond afgewerkte staatsdeur betreedt u het appartement. De hal met ruime garderode kast, leidt naar de living. De centraal gelegen woonkeuken is een op maat vervaardigd ontwerp met kookeiland, bargedeelte en kastenwand. De lichtgekleurde en gekaderde fronten met softclose-lades worden gecombineerd met een massief en gezoet ‘Breccia Botticelli’ marmeren werkblad. De keuken is uitgerust met Siemens-apparatuur, waaronder twee ovens, een koel-/vriescombinatie en een vaatwasser, aangevuld met een Bora inductie kookplaat met geïntegreerd afzuigsysteem. De Quooker kraan is uitgevoerd in messing voor een stijlvolle design match. Aan de achterzijde ligt de eetkamer. Middels brede Fraké houten pui met veel glas en openslaande deuren is er vanuit hier toegang tot de tuin. Aan de voorzijde ligt de living met grote raampartijen en uitzicht op de grachten. Via de eetkamer bereikt u een tweede hal met separate wc, douche en toegang tot twee slaapkamers. Vanuit de multifunctionele tussenkamer die tegenover de keuken ligt bevindt zich de trap naar de slaapverdieping.

Slaapkamers & Badkamers
De twee kleinere slaapkamers met uitzicht op de tuin, bevinden zich aan de achterzijde. Eén op de begane grond en de tweede op een gedeelte van de eerste verdieping die bij het appartement hoort en het geheel een speelse en niet-alledaagse indeling geeft. Een van deze kamers beschikt over een eigen douche en directe toegang tot de tuin. De trap die de bel-etage verbindt met het souterrain is voorzien van een stijlvolle loper.
De ruime overloop geeft toegang tot alle vertrekken in het souterrain. Aan de voorzijde ligt een slaapkamer met maatwerkkast met volledig geïntegreerde airconditioning. Direct daarnaast ligt een badkamer met inloop douche, wc en op maat gemaakt wastafelmeubel afgewerkt in stijlvol ‘Breccia Botticelli’ natuursteen. Aan de andere kant van de overloop ligt de stookruimte waar ‘state of the art’ techniek, zorgt voor het unieke A++ label. Onder de trap is er een huishoudkamer met aansluiting voor de wasmachine en wasdroger. Aan de achterzijde ligt de veelbelovende master bedroom. Door het lijstwerk, de rondingen in het stucwerk en maatwerk met de meest hoogwaardige materialen wordt de sfeer van luxe en stijl hier uiteraard volledig doorgetrokken. De badkamer is afgesloten door zelf blinderend glas waardoor u kan kiezen om het vrijstaande ligbad binnen of buiten het zicht te laten. Verder is ook hier gebruik gemaakt van het inmiddels bekende massieve natuursteen in de afwerking en de dubbele wastafel. Last but not least, is er nog de ruime inloop regendouche met zitting. Hier voelt het of u de honeymoon suite in het vlakbij gelegen en recent opgeleverde Rosewood hotel hebt geboekt, maar dan beter. Een heerlijke plek om te zijn.

De tuin
Ook in deze mediterrane cocktail tuin is over alle details nagedacht. Aan de linker zijde is een ingebouwde lounge gemaakt. Aan de ander zijde drinkt u een aperitief aan een lange bar, in het verlengde van de eetkamer. Hier geniet u van veel privacy en beleeft u een 5 sterren gevoel met internationale allure.

De Buurt
Jacob van Lennepkade bevindt zich net over de grens van Oud-Zuid en Oud-West, pal naast de grachtengordel. Een unieke, centrale ligging en daardoor aan de ene kant op loopafstand van het Vondelpark, de Van Baerlestraat, de Cornelis Schuytstraat en de P.C. Hooftstraat en aan de andere kant, direct aan het UNESCO werelderfgoed van de historische Amsterdamse grachten terwijl het Museumkwartier en het Concertgebouw eveneens op loopafstand liggen. Een uitgebreid aanbod aan winkels, restaurants, culturele voorzieningen en scholen bevindt zich in de directe omgeving. Het pand ligt op loopafstand van twee Albert Heijn filialen (Elandsgracht en Overtoom), een Aldi en een Jumbo.

Bereikbaarheid
Via de Overtoom is de Ring A10 snel bereikbaar, Parkeren geschiedt op de openbare weg middels betaald parkeren of vergunningensysteem. De verbindingen met het openbaar vervoer zijn uitstekend. Zo zijn er goede bus- en tramverbindingen vanaf de Marnixstraat, Leidseplein, Eerste Constantijn Huijgensstraat en de Overtoom die om de hoek liggen. Alle haltes zijn op enkele minuten lopen. Het Centraal Station is met de fiets op circa 10 minuten afstand.

Bijzonderheden
• Gebruiksoppervlakte wonen circa 149 m²
• Tuin van circa 21 m²
• Bijzonder hoogwaardig gerenoveerd in 2025
• Eikenhouten vloer met vloerverwarming en vloerkoeling
• Gelegen op eigen grond
• Nieuwe fundering (2018)
• Nieuwe kozijnen met isolerende beglazing
• Energielabel A++
• Verwarming via warmtepomp met balansventilatie en warm water via warmtepomp boiler
• Automatisch balanssysteem waarbij ventilatie en zuurstof worden geoptimaliseerd.
• Geen aardgas verbruik
• Uitstekende isolatie
• Projectnotaris Notariaat Elise Visser te Amsterdam
• Niet-zelfbewoningsclausule van toepassing
• Oplevering in overleg, mogelijk op korte termijn

Deze informatie is door ons met de nodige zorgvuldigheid samengesteld. Onzerzijds wordt echter geen enkele aansprakelijkheid aanvaard voor enige onvolledigheid, onjuistheid of anderszins, dan wel de gevolgen daarvan. Alle opgegeven maten en oppervlakten zijn slechts indicatief
De Meetinstructie is gebaseerd op de NEN2580. De Meetinstructie is bedoeld om een meer eenduidige manier van meten toe te passen voor het geven van een indicatie van de gebruiksoppervlakte. De Meetinstructie sluit verschillen in meetuitkomsten niet volledig uit, door bijvoorbeeld interpretatieverschillen, afrondingen of beperkingen bij het uitvoeren van de meting.

Meer informatie

Neem vrijblijvend contact op

Kenmerken

Algemeen
  • Bouwjaar: 1891
  • Woonoppervlakte: ca. 149 m2
  • Perceeloppervlakte: -
  • Inhoud: ca. 370m3
  • Ligging: Aan water, aan rustige weg
Indeling
  • Verdiepingen: 1891
  • Slaapkamers: 4
  • Tuin: Patio atrium
  • Garage: Geen garage
Energie
  • Isolatie: Volledig geisoleerd
  • Verwarming: Vloerverwarming geheel
  • Warm water: -

    Zoekopdracht plaatsen

    Vul het formulier in om een zoekopdracht aan te maken.

      Wij verwerken uw gegevens volgens ons privacybeleid