Recent geheel gerenoveerde middenwoning gelegen aan een rustige doodlopende straat met vrij uitzicht aan de voorzijde. Deze royale uitgebouwde woning heeft een lichte woonkamer, een luxe open keuken, bijkeuken, schuur, vijf slaapkamers, moderne badkamer en een zonnige voor- en achtertuin.

De woning is gelegen in een leuke en kindvriendelijke buurt nabij van het centrum van Bussum, scholen, sportverenigingen, NS-station…

Recent geheel gerenoveerde middenwoning gelegen aan een rustige doodlopende straat met vrij uitzicht aan de voorzijde. Deze royale uitgebouwde woning heeft een lichte woonkamer, een luxe open keuken, bijkeuken, schuur, vijf slaapkamers, moderne badkamer en een zonnige voor- en achtertuin.

De woning is gelegen in een leuke en kindvriendelijke buurt nabij van het centrum van Bussum, scholen, sportverenigingen, NS-station Bussum-Zuid, de heide en uitvalswegen.

Kortom een heerlijk en compleet gemoderniseerd gezinshuis wat direct kan worden betrokken!

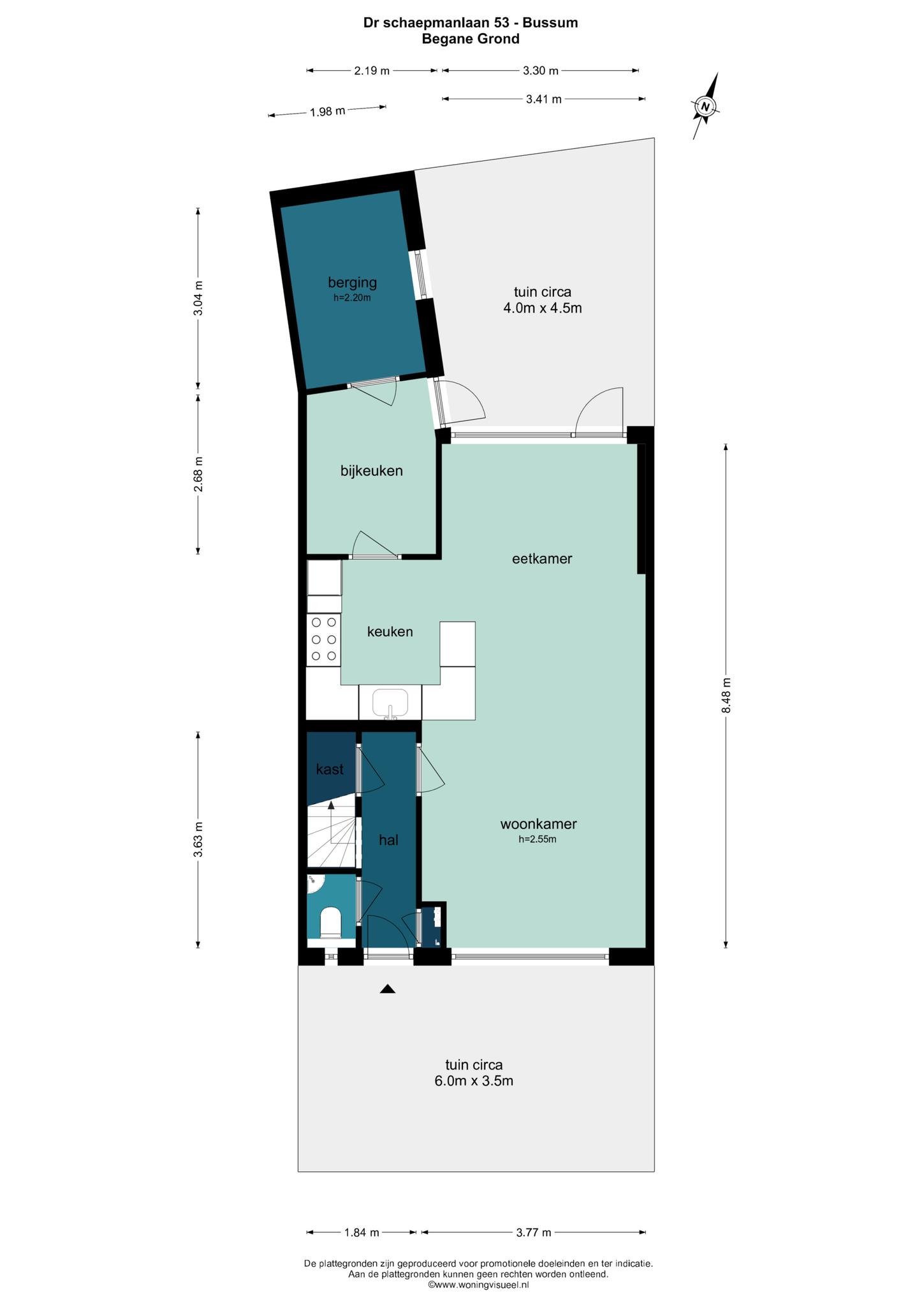
Indeling:

Entree, vernieuwde meterkast, toilet met fonteintje, trapkast, royale uitgebouwde woonkamer voorzien van een fraaie parketvloer en open haard, luxe open keuken met fornuis (Smeg), vaatwasser, grote koelkast en afzuigschouw, bijkeuken met grote vriezer en aansluiting voor de wasmachine en droger, toegang naar de achtertuin, bergschuur met deur naar de achterom.
Eerste verdieping: overloop, royale slaapkamer aan de voorzijde met vaste kast, moderne badkamer met inloopdouche, wastafelmeubel, vloerverwarming en 2e toilet, 2e ruime slaapkamer met vaste kast aan de tuinzijde, 3e slaapkamer met vaste kast eveneens aan de tuinzijde.

Tweede verdieping: overloop, twee gezellige en lichte slaapkamers beiden met een grote dakkapel en vaste kasten.

Buiten:

De voortuin met vrij uitzicht ligt op het zuiden en heeft een groot elektrisch zonnescherm. De beschutte en mooi aangelegde achtertuin is bereikbaar vanuit de woonkamer, de bijkeuken en de achterom.

Bijzonderheden:

Bouwjaar: 1954
Woonoppervlak: 109 m2
Energielabel: D
Oplevering in overleg
5 slaapkamers
Cv-ketel december 2016
Elektra geheel vernieuwd
Geheel vernieuwde riolering en waternet
Isolatie: dakisolatie, huis voorzien van dubbelglas.
Vloerverwarming in de badkamer, keuken en bijkeuken, gang en toilet.
Twee dakkapellen

Meer informatie

Neem vrijblijvend contact op

Kenmerken

Algemeen
  • Bouwjaar: 1954
  • Woonoppervlakte: ca. 109 m2
  • Perceeloppervlakte: ca. 101m2
  • Inhoud: ca. 367m3
  • Ligging: Aan rustige weg, in woonwijk, vrij uitzicht
Indeling
  • Verdiepingen: 1954
  • Slaapkamers: 5
  • Tuin: Voortuin
  • Garage: Geen garage
Energie
  • Isolatie: Dakisolatie, dubbel glas, hr glas
  • Verwarming: Cv ketel
  • Warm water: Cv ketel

    Zoekopdracht plaatsen

    Vul het formulier in om een zoekopdracht aan te maken.

      Wij verwerken uw gegevens volgens ons privacybeleid